Երևանում Կեմպինսկի Հյուրանոցի Կառուցման Երկար Ճանապարհը
Աղբյուր՝ https://www.construction.am
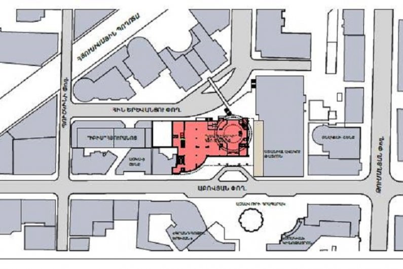
Աշխարհահռչակ Կեմպինսկի հյուրանոցի մասնաճյուղը իր հյուրընկալ դռները կբացի հյուրերի առչև նաև Հայաստանում: Այն կառուցվում է Աբովյան 5/5 հասցեում՝ Մոսկվա կինոթատրոնի դիմաց: ՀՀ կառավարությանն առընթեր Քաղաքաշինության պետական կոմիտեի նախագահ Նարեկ Սարգսյանը նշել էր, որ հյուրանոցի կառուցումը մտնում է ներդրումային ծրագրի մեջ և ծախսերը կգերազանցեն 20 մլն դոլարը:
Հյուրանոցի շինարարությունը իրականացնում է Ազգային ժողովի «Ծառուկյան» խմբակցության ղեկավար Գագիկ Ծառուկյանի հիմնադրած «Մուլտի գրուպ կոնցեռն» ընկերությունն ու «Ա.Ա.Դ.Հոթել» ՓԲԸ-ն: Հյուրանոցի կառուցման մասին աժիոտաժը սկսվեց 2011թ փետրվարից, որը դեռևս շարունակվում է ճարտարապետների և շինարարների շրջանակներում, ինչը բնական է, քանի որ խոշոր ներդրումային ծրագիր է և հետաքրքիր է ճարտարապետական, շինարարական և տնտեսական առումներով: «Կեմպինսկի» ցանցի 2011-ի տարածած հաղորդագրության մեջ ասվում էր, որ «Կեմպինսկի Երևան» հյուրանոցը կտեղակայվի Ամիրյան փողոցի վրա՝ ԱԳՆ շենքի մոտակայքում: Նշվում էր, որ հյուրանոցի բացումը նախատեսված է 2013 թ.-ին, սակայն այդ նախագիծն այդպես էլ իրականություն չդարձավ:
Նախագծման ընթացքը հարթ չընթացավ և այս տարիների ընթացքում փոփոխվեց ոչ միայն նախագիծը, այլև նախագծող ընկերությունը և հյուրանիցի տեղը: Երկար «ճանապարհից» հետո ծրագիրը գտավ իր ներկա նախագծողին՝ «Հայնախագիծ» ընկերությանը: Ընկերության տնօրեն Գրիգոր Ազիզյանի խոսքով դեռ ընթանում են բուն նախագծային աշխատանքները և պատրաստվում են զրոյական նիշի գծագրերը: Այդտեղ կար շինություն՝ մի խանութ էր և կողքից երեք հարկ նկուղային շինություններ էին:
Նախատեսվում էր կառուցել հյուրանոց, բայց պատվիրատուն փոխվեց: Նշենք, որ 5 տարվա վաղեմության այս խոշոր ծրագիրը սկզբնական շրջանում ունեցել է նախագծային առաջարկ, ինչը պարզ դարձավ Գրիգոր Ազիզյանի խոսքից. «Ամռանը նորից սկսեցինք «Կեմպինսկի» հյուրանոցի էսքիզային աշխատանքները , որովհետև մի պահ մենք այն արել էինք, ինչն էլ հաստատվել էր քաղաքաշինական խորհրդում: Դա անցյալ տարի էր: Երկու նախագիծ կար, առաջինը այն բարձրահարկն է, որը նախատեսվել էր 5 տարի առաջ: Երկու տարի առաջ երկրորդը նախագծվեց մեր կողմից: Դա 13 հարկանի կառույց էր, որը նորից հաստատվեց որպես էսքիզային նախագիծ: Այսինքն, պետք է մշակվեր աշխատանքային նախագիծ, որի շարունակությունը չեղավ: Երրորդ տարբերակը սկսվեց ամռանը և սկսեցինք աշխատանքային նախագծեր անել: Հին տարբերակի վրա նորից սկսեցինք փոփոխություններ կատարել, որը քննարկվեց, բայց և այնպես զգում էինք, որ աշխատանքներն առաջ չէին գնում՝ չնայած մեր հարաբերությունները պատվիրատուի հետ շատ նորմալ էին: Նախագիծը որոշակիորեն կապված է նաև Հյուսիսային պողոտայի հետ, իսկ Հյուսիսային պողոտան ունի իր հեղինակային խումբը: Որոշ խորհրդակցություններ սկսեցինք Հյուսիսային պողոտայի նախագծային խմբի ղեկավարի հետ: Նրա իրավունքների մեջ էր մտնում շենքի հարկայնությունը հաստատելու որոշումը: Աշխատանքին ներգրավվեց նաև Նարեկ Սարգսյանի ճարտարապետական արվեստանոցը: Այս ընթացքում քննարկումներ սկսվեց պատվիրատուի հետ և որոշ կառուցվածքային փոփոխություններ եղան»:
Այլ կերպ ասած «Կեմպինսկի» հյուրանոցի կառուցման քննարկումները, ինչպես և սպասվում էր, թեժ են եղել: Սա բնական գործընթաց է, քանի որ այն խոշոր ծրագիր է:
Այժմ, երբ արդեն «Կեմպինսկի»-ի նախագծման աշխատանքները ընթացքում են, կարծում եմ ճիշտ ժամանակն է խոսել ընդհանուր նախագծից և այս պահին իրականացված աշխատանքներից: Այժմ իրականացվում են հողային աշխատանքները: Եվ այսպես հյուրանոցի գլխավոր մուտքը լինելու է Աբովյան փողոցից: Այն Ստանիսլավսկու թատրոնի կողմից ունենալու է աշտարակ, որի հարկայնությունը կազմելու է 17 հարկ, որը հակառակ կողմից գրեթե հավասարվելու է «Իբիս» հյուրանոցի հարկայնությանը: Ըստ նախագծի հյուրանոցային համարները սկվելու են երրորդ հարկից վեր, առաջինից երրորդ հարկերը լինելու են հասարակական նշանակության: Համարների քանակը տատանվող է (քանի որ մեկ համարը կարող է միանալ երկրորդին )իսկ մակսիմալ քանակը կկազմի 153: Հյուրանոցի 5 հարկերում կտեղակայվեն ապարտամենտներ, որոնց ընդհանուր քանակը կազմում է 15: Նախագծով կառույցը ունենալու է նաև երեք ստորգենտյա հարկ, որոնցից մեկում տեղակայվելու է 45 մեքենայի համար նախատեսված ավտոկայանատեղի՝ Հյուսիսային պողոտայի կողմից մուտքով: Մնացած երկու հարկերում, սպասարկման գոտիներից զատ, տեղակայվելու է նաև սպա կենտրոն և լողավազան:
Հյուրանոցի շինարարությունը իրականացնում է Ազգային ժողովի «Ծառուկյան» խմբակցության ղեկավար Գագիկ Ծառուկյանի հիմնադրած «Մուլտի գրուպ կոնցեռն» ընկերությունն ու «Ա.Ա.Դ.Հոթել» ՓԲԸ-ն: Հյուրանոցի կառուցման մասին աժիոտաժը սկսվեց 2011թ փետրվարից, որը դեռևս շարունակվում է ճարտարապետների և շինարարների շրջանակներում, ինչը բնական է, քանի որ խոշոր ներդրումային ծրագիր է և հետաքրքիր է ճարտարապետական, շինարարական և տնտեսական առումներով: «Կեմպինսկի» ցանցի 2011-ի տարածած հաղորդագրության մեջ ասվում էր, որ «Կեմպինսկի Երևան» հյուրանոցը կտեղակայվի Ամիրյան փողոցի վրա՝ ԱԳՆ շենքի մոտակայքում: Նշվում էր, որ հյուրանոցի բացումը նախատեսված է 2013 թ.-ին, սակայն այդ նախագիծն այդպես էլ իրականություն չդարձավ:
Նախագծման ընթացքը հարթ չընթացավ և այս տարիների ընթացքում փոփոխվեց ոչ միայն նախագիծը, այլև նախագծող ընկերությունը և հյուրանիցի տեղը: Երկար «ճանապարհից» հետո ծրագիրը գտավ իր ներկա նախագծողին՝ «Հայնախագիծ» ընկերությանը: Ընկերության տնօրեն Գրիգոր Ազիզյանի խոսքով դեռ ընթանում են բուն նախագծային աշխատանքները և պատրաստվում են զրոյական նիշի գծագրերը: Այդտեղ կար շինություն՝ մի խանութ էր և կողքից երեք հարկ նկուղային շինություններ էին:
Նախատեսվում էր կառուցել հյուրանոց, բայց պատվիրատուն փոխվեց: Նշենք, որ 5 տարվա վաղեմության այս խոշոր ծրագիրը սկզբնական շրջանում ունեցել է նախագծային առաջարկ, ինչը պարզ դարձավ Գրիգոր Ազիզյանի խոսքից. «Ամռանը նորից սկսեցինք «Կեմպինսկի» հյուրանոցի էսքիզային աշխատանքները , որովհետև մի պահ մենք այն արել էինք, ինչն էլ հաստատվել էր քաղաքաշինական խորհրդում: Դա անցյալ տարի էր: Երկու նախագիծ կար, առաջինը այն բարձրահարկն է, որը նախատեսվել էր 5 տարի առաջ: Երկու տարի առաջ երկրորդը նախագծվեց մեր կողմից: Դա 13 հարկանի կառույց էր, որը նորից հաստատվեց որպես էսքիզային նախագիծ: Այսինքն, պետք է մշակվեր աշխատանքային նախագիծ, որի շարունակությունը չեղավ: Երրորդ տարբերակը սկսվեց ամռանը և սկսեցինք աշխատանքային նախագծեր անել: Հին տարբերակի վրա նորից սկսեցինք փոփոխություններ կատարել, որը քննարկվեց, բայց և այնպես զգում էինք, որ աշխատանքներն առաջ չէին գնում՝ չնայած մեր հարաբերությունները պատվիրատուի հետ շատ նորմալ էին: Նախագիծը որոշակիորեն կապված է նաև Հյուսիսային պողոտայի հետ, իսկ Հյուսիսային պողոտան ունի իր հեղինակային խումբը: Որոշ խորհրդակցություններ սկսեցինք Հյուսիսային պողոտայի նախագծային խմբի ղեկավարի հետ: Նրա իրավունքների մեջ էր մտնում շենքի հարկայնությունը հաստատելու որոշումը: Աշխատանքին ներգրավվեց նաև Նարեկ Սարգսյանի ճարտարապետական արվեստանոցը: Այս ընթացքում քննարկումներ սկսվեց պատվիրատուի հետ և որոշ կառուցվածքային փոփոխություններ եղան»:
Այլ կերպ ասած «Կեմպինսկի» հյուրանոցի կառուցման քննարկումները, ինչպես և սպասվում էր, թեժ են եղել: Սա բնական գործընթաց է, քանի որ այն խոշոր ծրագիր է:
Այժմ, երբ արդեն «Կեմպինսկի»-ի նախագծման աշխատանքները ընթացքում են, կարծում եմ ճիշտ ժամանակն է խոսել ընդհանուր նախագծից և այս պահին իրականացված աշխատանքներից: Այժմ իրականացվում են հողային աշխատանքները: Եվ այսպես հյուրանոցի գլխավոր մուտքը լինելու է Աբովյան փողոցից: Այն Ստանիսլավսկու թատրոնի կողմից ունենալու է աշտարակ, որի հարկայնությունը կազմելու է 17 հարկ, որը հակառակ կողմից գրեթե հավասարվելու է «Իբիս» հյուրանոցի հարկայնությանը: Ըստ նախագծի հյուրանոցային համարները սկվելու են երրորդ հարկից վեր, առաջինից երրորդ հարկերը լինելու են հասարակական նշանակության: Համարների քանակը տատանվող է (քանի որ մեկ համարը կարող է միանալ երկրորդին )իսկ մակսիմալ քանակը կկազմի 153: Հյուրանոցի 5 հարկերում կտեղակայվեն ապարտամենտներ, որոնց ընդհանուր քանակը կազմում է 15: Նախագծով կառույցը ունենալու է նաև երեք ստորգենտյա հարկ, որոնցից մեկում տեղակայվելու է 45 մեքենայի համար նախատեսված ավտոկայանատեղի՝ Հյուսիսային պողոտայի կողմից մուտքով: Մնացած երկու հարկերում, սպասարկման գոտիներից զատ, տեղակայվելու է նաև սպա կենտրոն և լողավազան:

